Page suivante
Page précédente
Èze (06360)

Villa 8 pièce(s) 4 chambre(s) 240 m²

2455 m²
2
Piscine
2 850 000 €
Réf CopraEze

Nichée dans un secteur résidentiel confidentiel, au pied de la Grande Corniche, cette villa contemporaine fera l’objet d’une restructuration complète en 2026, pensée autour d’une architecture épurée et actuelle.
La propriété bénéficie d’une vue spectaculaire sur le village d’Èze, dans un environnement naturel et préservé.

Son emplacement stratégique permet de rejoindre facilement Monaco et Nice, tout en restant à quelques minutes du cœur d’Èze : accès rapide à l’autoroute A8, et aéroport de Nice à seulement 35 minutes.

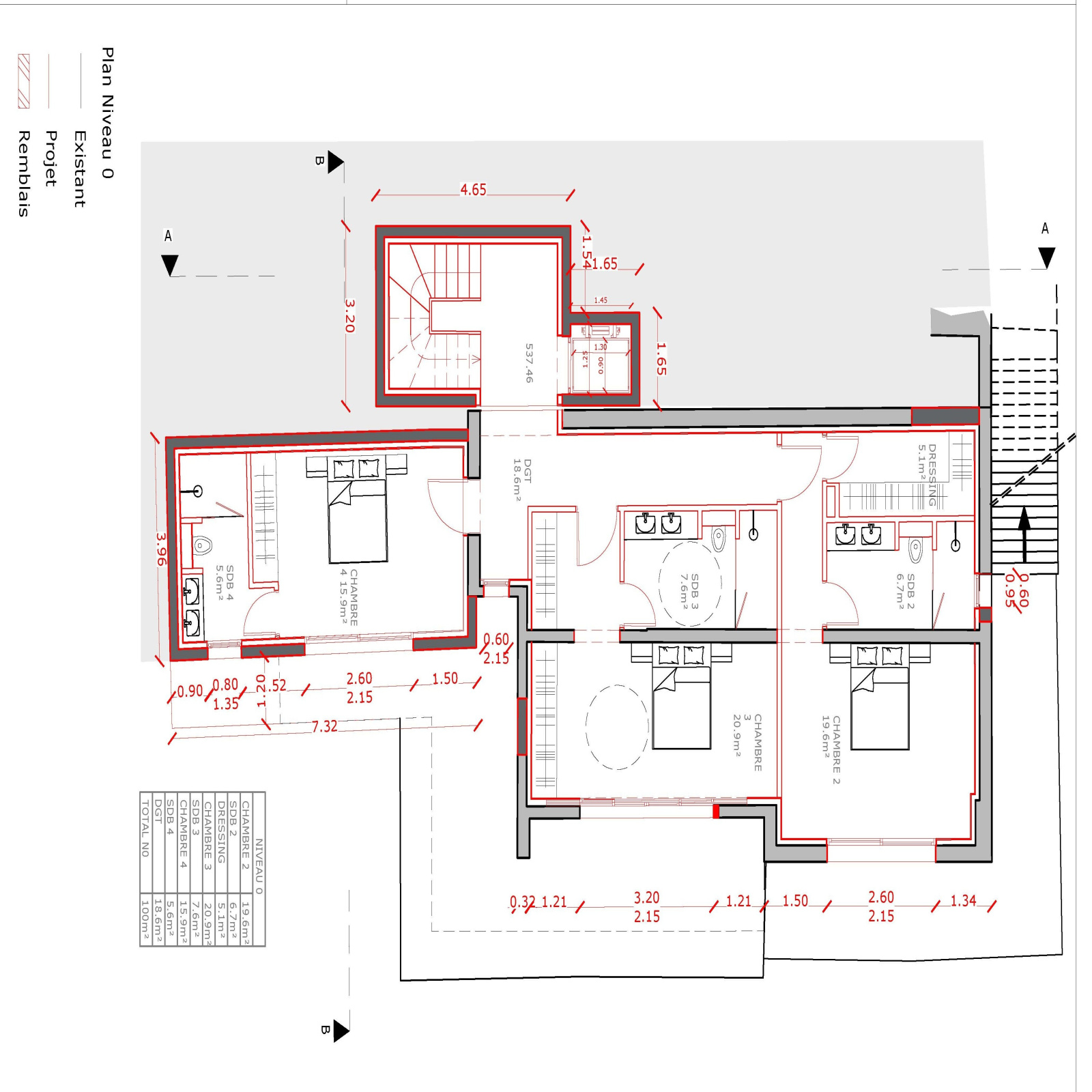
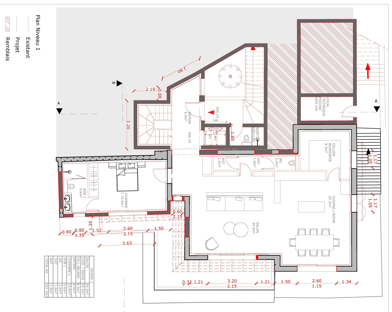
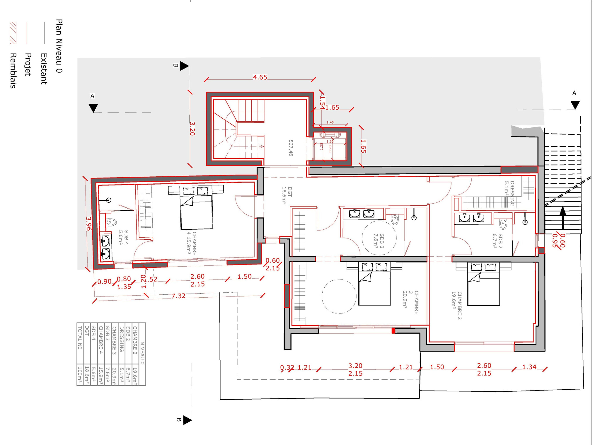
Le projet prévoit une surface habitable portée à 224 m², grâce à une extension autorisée, sur un terrain de 2 455 m².
Les espaces intérieurs s’articulent autour d’une vaste pièce de réception, réunissant salon, salle à manger et cuisine équipée, ouverte sur les extérieurs.
La villa proposera quatre suites indépendantes, chacune avec salle de bain ou salle d’eau, dressing et terrasse.

Une piscine avec accès au toit-terrasse ainsi qu’un garage complété par des stationnements, viennent parfaire ce projet.

Un bien rare, combinant vue, calme et accessibilité, idéal pour une résidence principale ou secondaire entre mer et collines.


Les informations sur les risques auxquels ce bien est exposé sont disponibles sur le site Géorisques

Bilan énergétique

Diagnostics énergetiques
Consommation énergétique
A B C D E F G
Emission de gaz à effet de serre
A B C D E F G
DPE ANCIENNE VERSION
A propos de ce bien Caractéristiques de ce bien
  • Surface 240 m²
  • terrain 2 455 m²
  • 4 chambre(s)
  • 2 garage(s)
  • exposition Sud-Est
  • 2 niveau(x)
  • vue Mer

Financier

Informations financières
Prix de vente 2 850 000 € Les honoraires d'agence seront intégralement à la charge du vendeur

Simulation

Calcul des mensualités
* Champs obligatoires
Unit Immobilier Agence