Page suivante
Page précédente
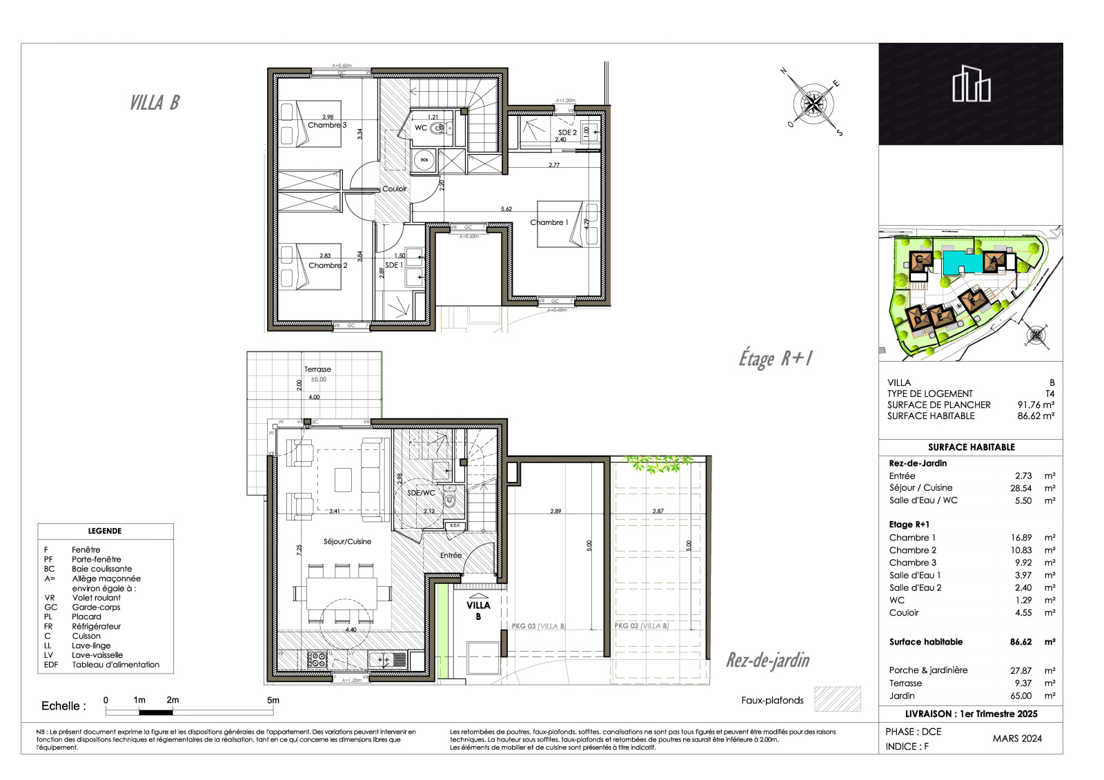
La Turbie (06320)

Villa 4 pièce(s) 3 chambre(s) 93.5 m²

65 m²
2
735 000 €
Réf 1121B

La Turbie, villa individuelle de 93,5 m² à deux pas du centre et des commerces, mais aussi un emplacement stratégique non loin de Monaco et profitant aussi d'un accès rapide vers Nice. Jardin de 65 m². Terrasse de 11 m². Ensemble immobilier sécurisé comprenant 6 villas individuelles allant du T3 au T4. Chacune des villas dispose d'un jardin privatif avec terrasse et jacuzzi, deux places de stationnement privatif comprenant une attente pour borne de recharge électrique. Les villas sont toutes en R+1, le rez-de-chaussée est principalement voué à la pièce de vie dans laquelle vous retrouverez une cuisine aménagée ouverte sur le séjour salon donnant directement sur la terrasse et le jardin, quant à l'étage vous retrouverez l'ensemble de l'espace nuit.


Les informations sur les risques auxquels ce bien est exposé sont disponibles sur le site Géorisques

Bilan énergétique

Diagnostics énergetiques
Consommation énergétique
A B C D E F G
Emission de gaz à effet de serre
A B C D E F G
DPE en cours
A propos de ce bien Caractéristiques de ce bien
  • Surface 93,50 m²
  • terrain 65 m²
  • 3 chambre(s)
  • construit en 2021
  • 2 garage(s)
  • exposition Nord-Est
  • 2 niveau(x)

Financier

Informations financières
Prix de vente 735 000 € Les honoraires d'agence seront intégralement à la charge du vendeur

Simulation

Calcul des mensualités
* Champs obligatoires
Unit Immobilier Agence