Page suivante
Page précédente
La Turbie (06320)

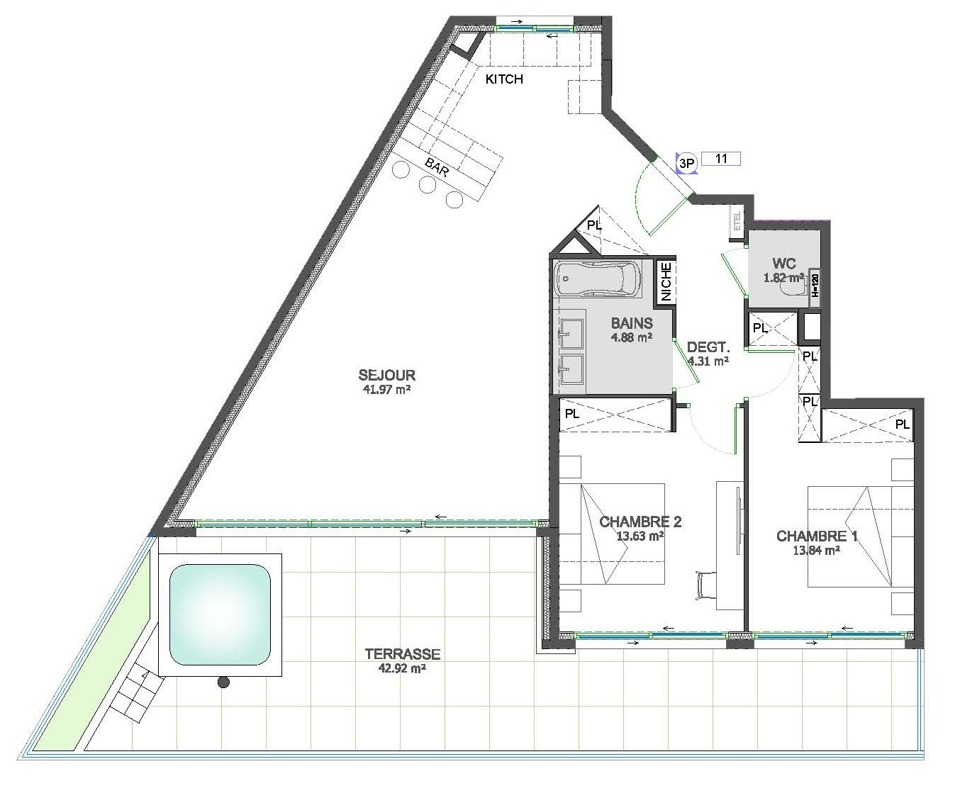
Appartement 3 pièce(s) 2 chambre(s) 80.45 m²

885 000 €
Réf 1171-11

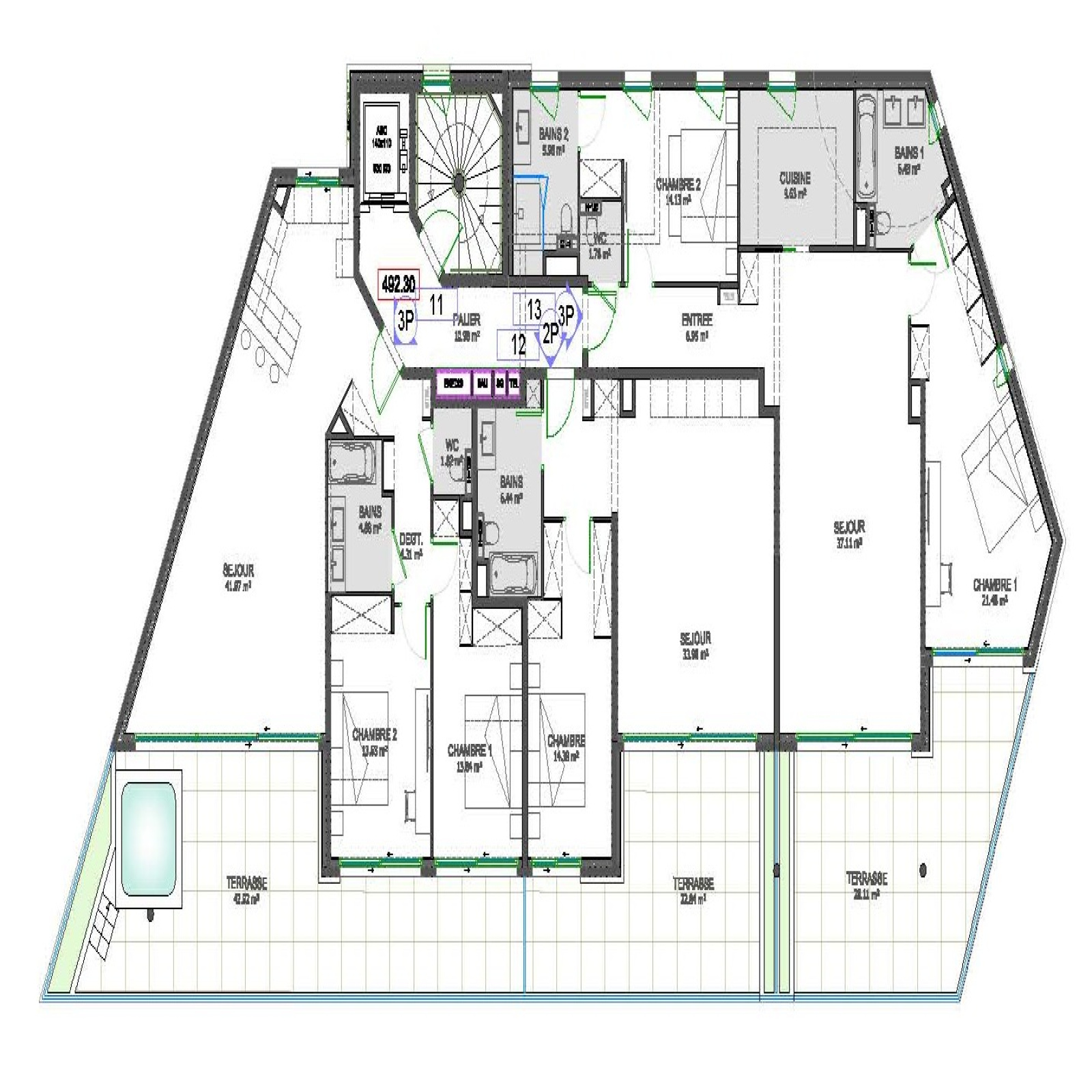
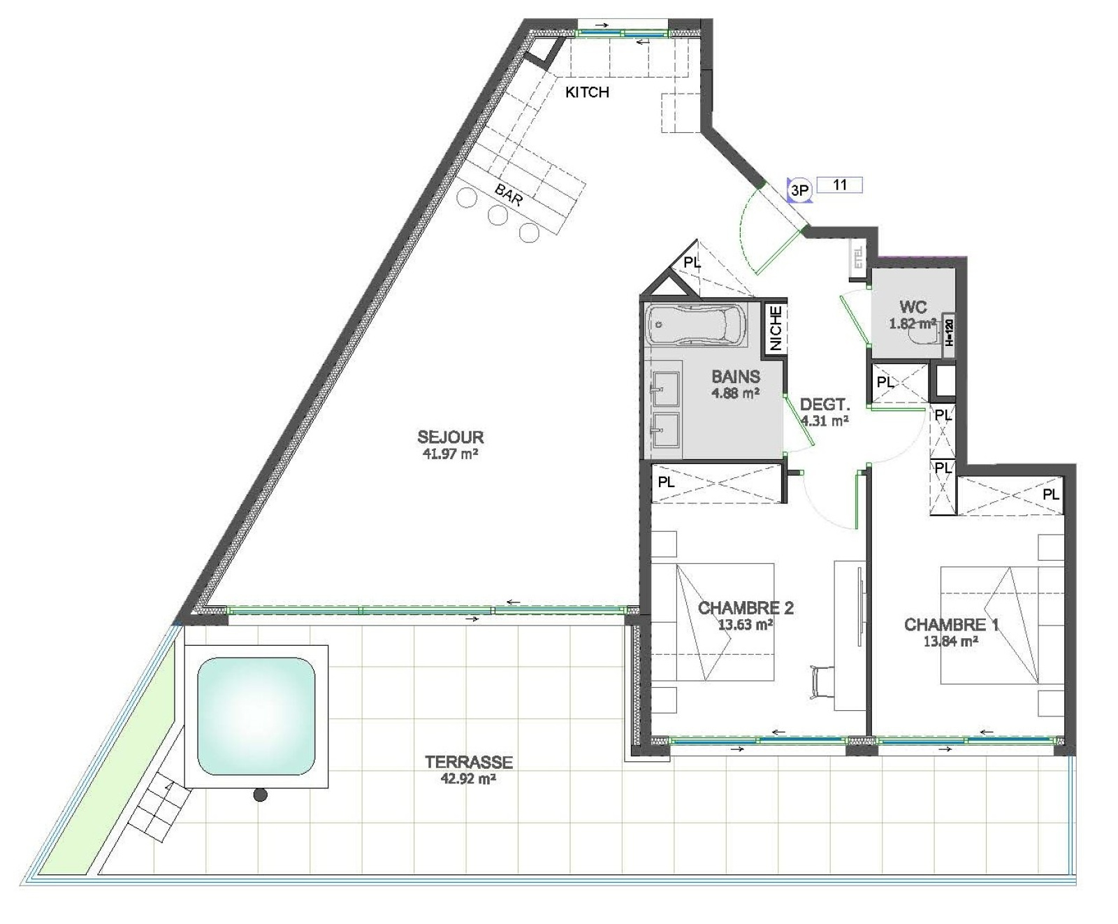
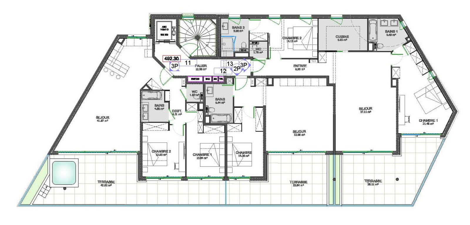
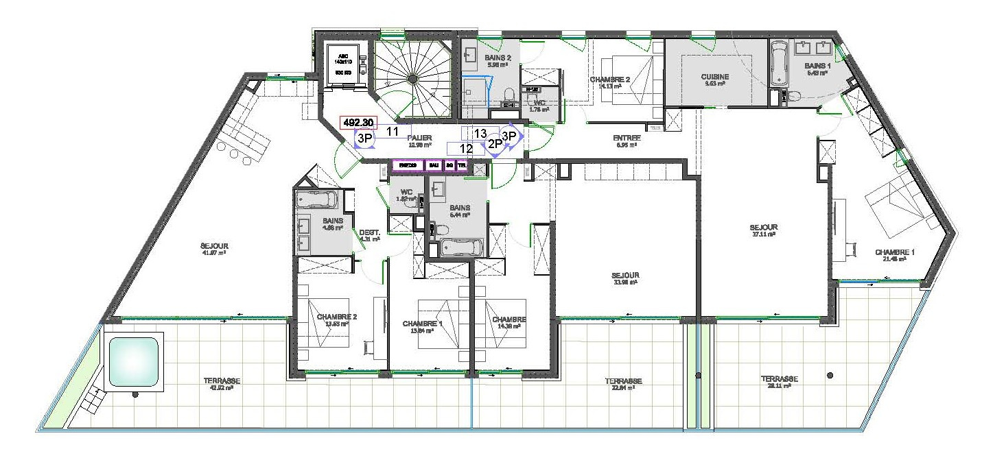
À proximité du village, dans un environnement résidentiel à seulement quelques minutes de Monaco, appartement 3 pièces situé au premier étage, offrant une surface habitable de 80,45 m².
Il se compose d’un séjour lumineux ouvrant sur une spacieuse terrasse de 42,92 m², d’une cuisine entièrement équipée, de deux chambres confortables et d’une salle de bains avec WC.
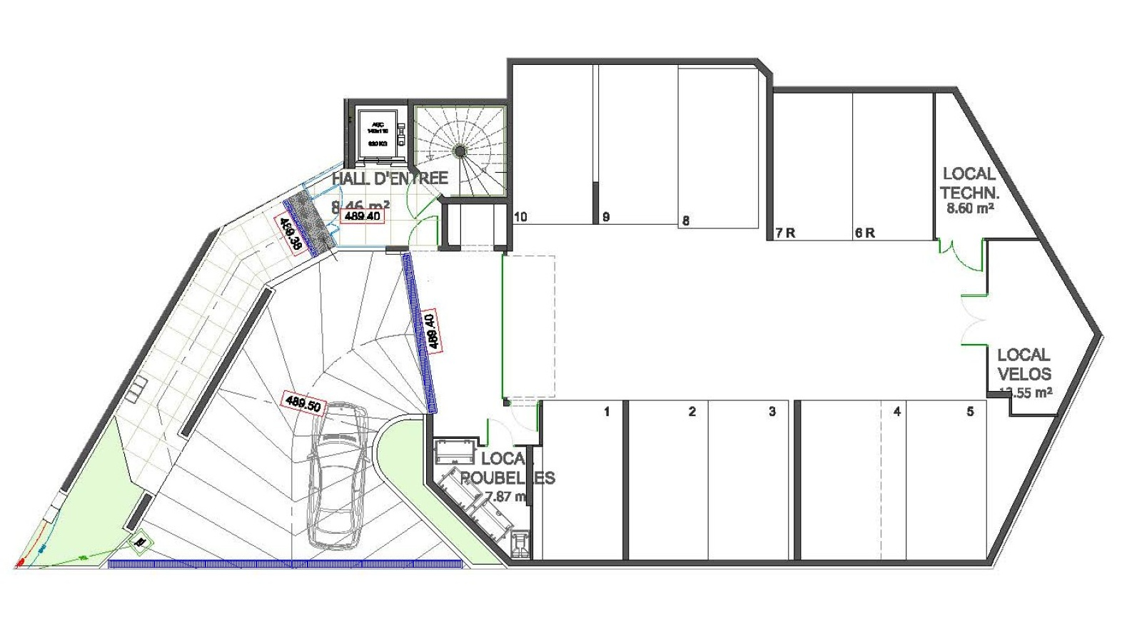
Un parking complète ce bien, idéal en résidence principale ou secondaire, à proximité immédiate des commodités et des axes principaux.

Bilan énergétique

Diagnostics énergetiques
Consommation énergétique
A B C D E F G
Emission de gaz à effet de serre
A B C D E F G
DPE ANCIENNE VERSION
A propos de ce bien Caractéristiques de ce bien
  • Surface 80,45 m²
  • 2 chambre(s)
  • exposition Sud-Est
  • 1 niveau(x)
  • vue Aperçu mer

Financier

Informations financières
Prix de vente honoraires TTC inclus 885 000 €

Simulation

Calcul des mensualités
* Champs obligatoires
Unit Immobilier Agence