Page suivante
Page précédente
La Turbie (06320)

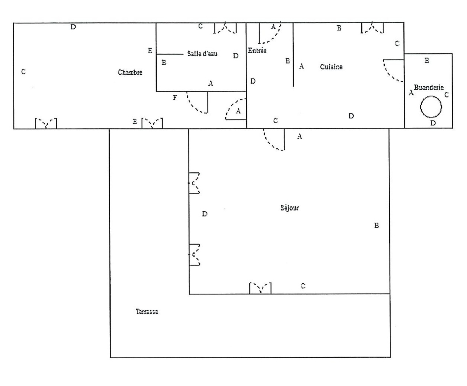
Appartement 2 pièce(s) 1 chambre(s) 43.03 m²

1
Ascenseur
1
392 000 €
Réf 1156

À quelques minutes à pied du centre de La Turbie, cet appartement de 43 m² loi Carrez bénéficie d’un environnement calme et d’un excellent ensoleillement.
Il se compose d’une pièce de vie avec cuisine semi-ouverte, d’une chambre, d’une salle d’eau avec WC et d’un espace buanderie.
L’extérieur constitue un véritable atout : terrasse de 37 m² exposée plein Sud, offrant une vue dégagée sur Monaco et la mer, prolongée par un jardin privatif de 77 m².
La résidence dispose d’une piscine, et une place de stationnement vient compléter ce bien.
Un appartement recherché, idéal en résidence principale, pied-à-terre ou investissement locatif.





Les informations sur les risques auxquels ce bien est exposé sont disponibles sur le site Géorisques

Bilan énergétique

Diagnostics énergetiques
Consommation énergétique
A B C D E F G
Emission de gaz à effet de serre
A B C D E F G
DPE en cours
A propos de ce bien Caractéristiques de ce bien
  • Surface 43,03 m²
  • carrez 43,03 m²
  • séjour 20,30 m²
  • 1 chambre(s)
  • 1 salle(s) de bain
  • Chauffage collectif : autre (autre)
  • 1 parking(s)
  • exposition Sud
  • 1 côté(s) mitoyen(s)
  • 1 niveau(x)
  • 2ème étage
  • 3 étage(s)
  • ascenseur
  • vue Mer et Monaco
  • terrasse

Info copro

Copropriété
  • Copropriété Oui
  • Lot n° 6
  • Nombre de lots 8
  • Plan de sauvegarde Non

Financier

Informations financières
Prix de vente 392 000 € Les honoraires d'agence seront intégralement à la charge du vendeur

Simulation

Calcul des mensualités
* Champs obligatoires
Unit Immobilier Agence