Page suivante
Page précédente
La Turbie (06320)

Appartement 2 pièce(s) 1 chambre(s) 53.34 m²

Balcon
1
429 000 €
Réf AugA21

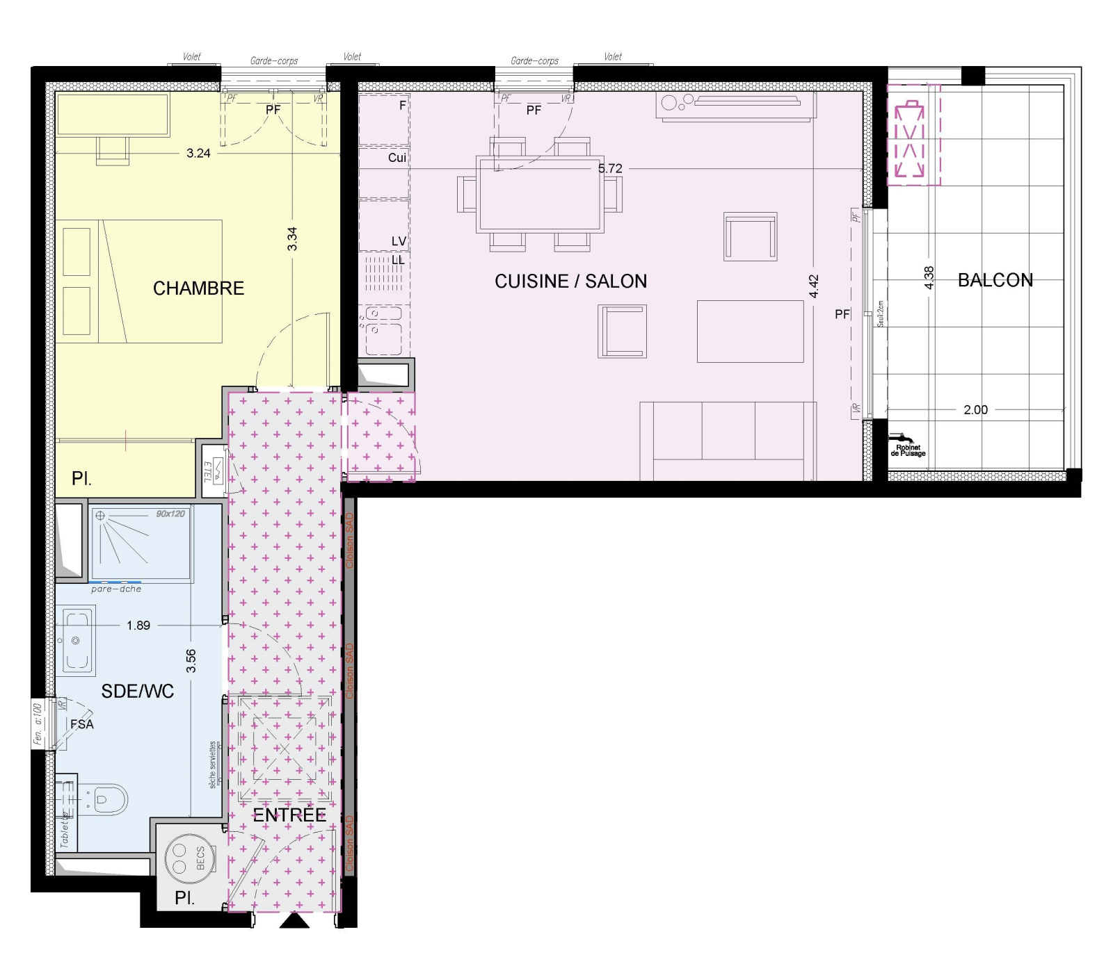
À proximité immédiate du village et de ses commerces, appartement 2 pièces de plus de 53 m² habitables, situé au deuxième et avant-dernier étage avec ascenseur d’une résidence récente et de standing.
Il se compose d’une entrée, d’une cuisine ouverte sur un vaste séjour, d’une chambre avec placard, d’une grande salle d’eau et de WC suspendus.
L’appartement bénéficie d’une exposition Est / Sud-Est, d’un balcon d’environ 9 m² avec vue mer, et se présente en état neuf, avec disponibilité immédiate.
Un garage est inclus.
En complément, possibilité d’acquérir deux parkings mécanisés (45 000 €).
Frais de notaire réduits.


Les informations sur les risques auxquels ce bien est exposé sont disponibles sur le site Géorisques

Bilan énergétique

Diagnostics énergetiques
Consommation énergétique
A B C D E F G
Emission de gaz à effet de serre
A B C D E F G
DPE en cours
A propos de ce bien Caractéristiques de ce bien
  • Surface 53,34 m²
  • 1 chambre(s)
  • construit en 2021
  • 1 garage(s)
  • exposition Sud-Est
  • 3 niveau(x)
  • 2ème étage
  • 3 étage(s)
  • vue Mer
  • balcon

Financier

Informations financières
Prix de vente 429 000 € Les honoraires d'agence seront intégralement à la charge du vendeur

Simulation

Calcul des mensualités
* Champs obligatoires
Unit Immobilier Agence