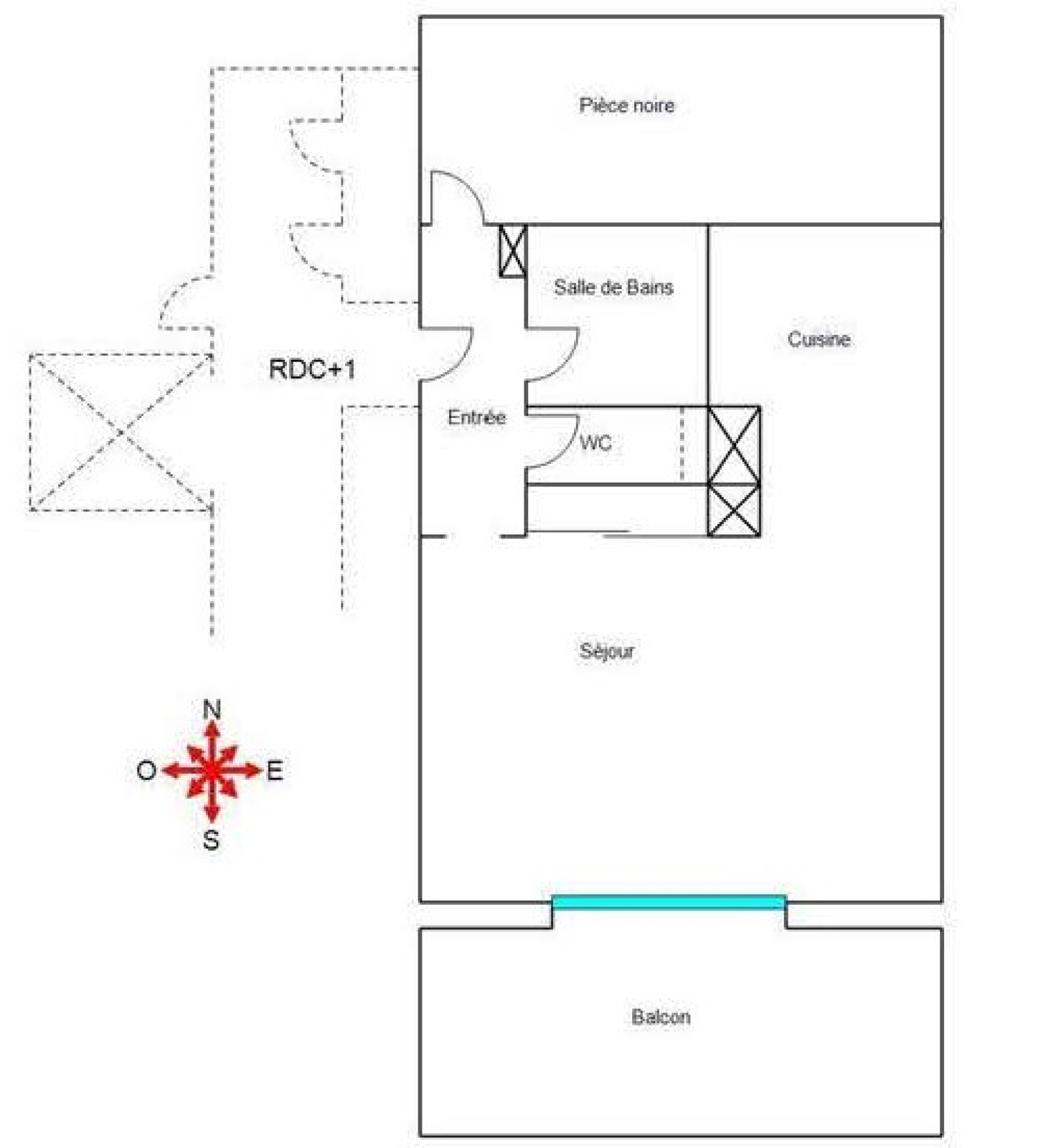
Appartement de 49 m² situé au premier étage de la résidence Monte Carlo Hill. Composé d'une entrée, d'un séjour avec cuisine, d'une salle de bain, un wc indépendant et une pièce noire de 10 m². Balcon de 10 m². Cave. Garage. Vue sur cour. Exposition Sud Est. Proche commerces et commodités
Appartement 1 pièce(s) 49 m²
Bilan énergétique
Diagnostics énergetiques- Surface 49 m²
- construit en 1990
- 1 garage(s)
- exposition Sud-Est
- 1 niveau(x)
- vue Cour
Financier
Informations financièresSimulation
Calcul des mensualités
Les informations recueillies sur ce formulaire sont enregistrées dans un fichier informatisé par La Boite Immo agissant comme Sous-traitant du traitement pour la gestion de la clientèle/prospects de l'Agence / du Réseau qui reste Responsable du Traitement de vos Données personnelles.
La base légale du traitement repose sur l’intérêt légitime de l'Agence / du Réseau.
Elles sont conservées jusqu'à demande de suppression et sont destinées à l'Agence / au Réseau.
Conformément à la loi « informatique et libertés », vous pouvez exercer votre droit d'accès aux données vous concernant et les faire rectifier en contactant l'Agence / le Réseau.
Si vous estimez, après avoir contacté l'Agence / le Réseau, que vos droits « Informatique et Libertés » ne sont pas respectés, vous pouvez adresser une réclamation à la CNIL.
Nous vous informons de l’existence de la liste d'opposition au démarchage téléphonique « Bloctel », sur laquelle vous pouvez vous inscrire ici : https://www.bloctel.gouv.fr
Dans le cadre de la protection des Données personnelles, nous vous invitons à ne pas inscrire de Données sensibles dans le champ de saisie libre
Ce site est protégé par reCAPTCHA, les Politiques de Confidentialité et les Conditions d'Utilisation de Google s'appliquent.