Page suivante
Page précédente
La Turbie (06320)

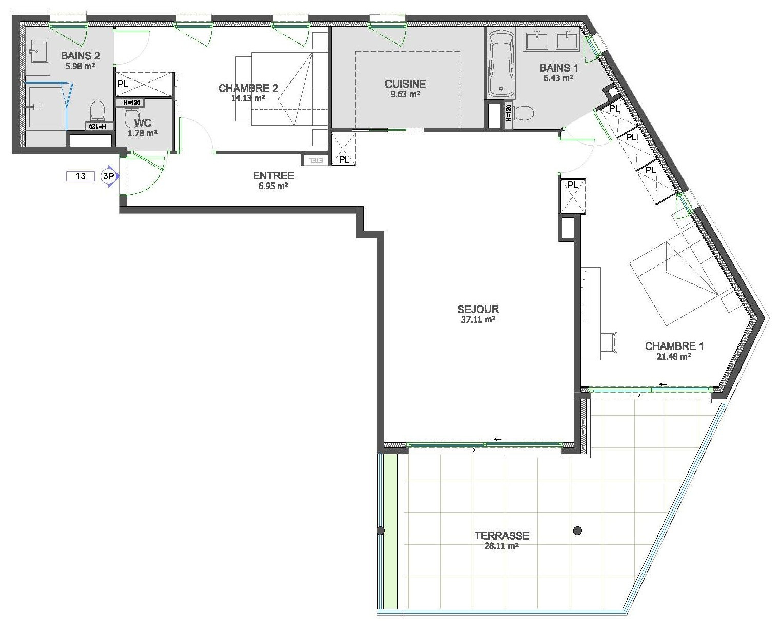
Appartement 3 pièce(s) 2 chambre(s) 101.71 m²

1 110 000 €
Réf 1171 - 13

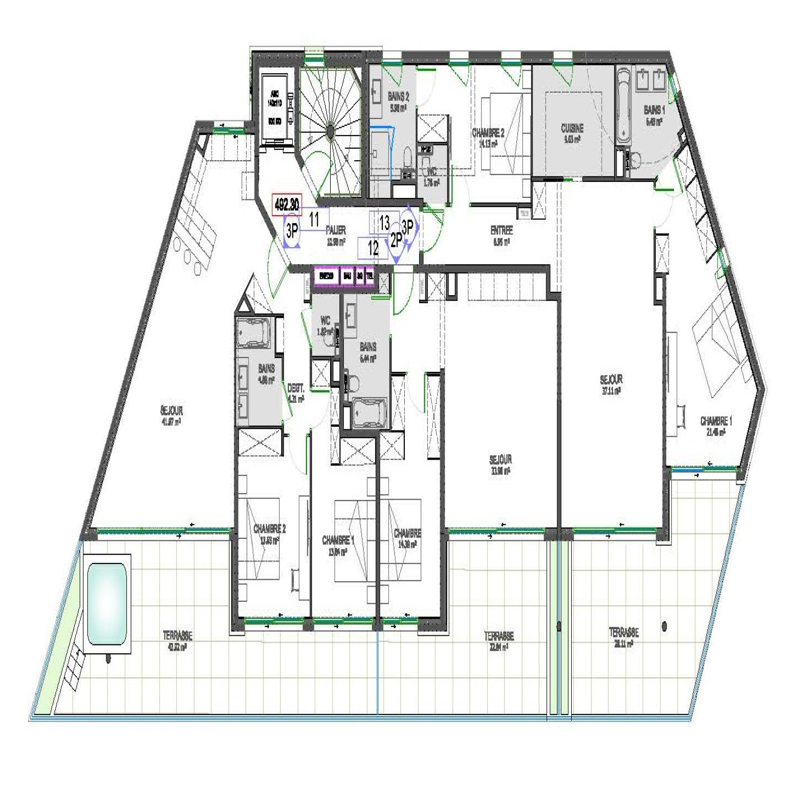
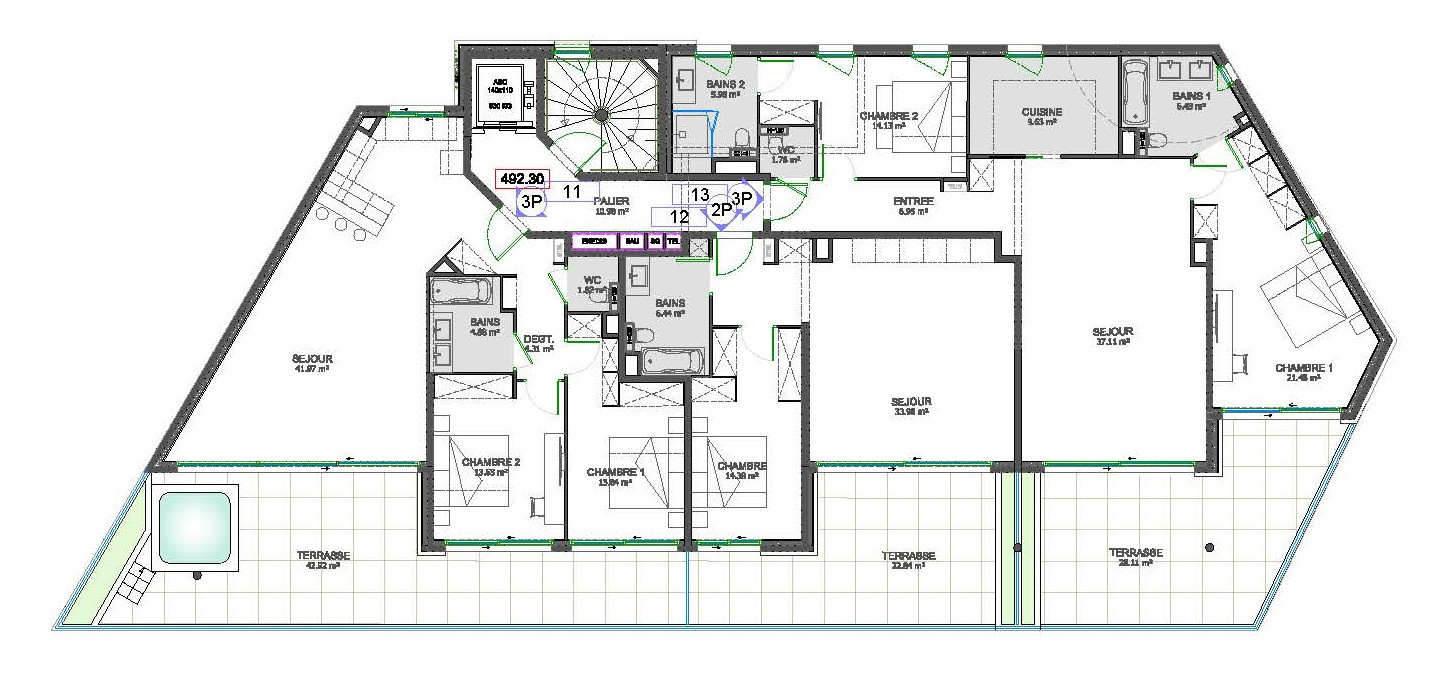
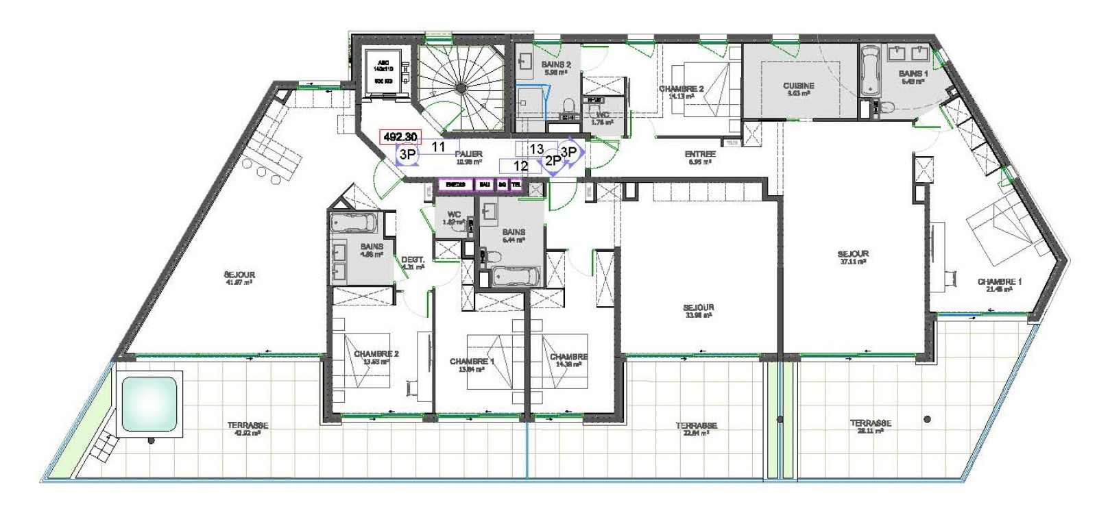
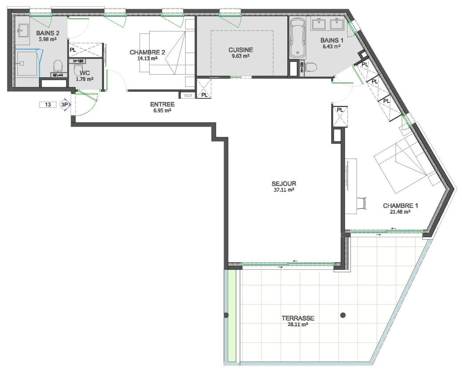
Proche village, dans un environnement résidentiel recherché à seulement quelques minutes de Monaco, découvrez ce 3 pièces situé au premier étage.

D’une surface habitable de 110,14 m², il se compose d’un séjour lumineux ouvrant sur une terrasse de 28,11 m², d’une cuisine entièrement équipée, de deux chambres confortables, de deux salles de bains avec WC, ainsi que d’un WC indépendant.

Parking inclus.

Un appartement aux volumes généreux, idéal pour une résidence principale ou secondaire, alliant confort et proximité immédiate des commodités.

Bilan énergétique

Diagnostics énergetiques
Consommation énergétique
A B C D E F G
Emission de gaz à effet de serre
A B C D E F G
DPE ANCIENNE VERSION
A propos de ce bien Caractéristiques de ce bien
  • Surface 101,71 m²
  • 2 chambre(s)
  • exposition Sud-Est
  • 1 niveau(x)

Financier

Informations financières
Prix de vente honoraires TTC inclus 1 110 000 €

Simulation

Calcul des mensualités
* Champs obligatoires
Unit Immobilier Agence